12.5 ft 150" High Bay Lighting Fixture Loop & Paddle Aircraft Cable Hanging Kit
12.5 ft 150" High Bay Lighting Fixture Loop & Paddle Aircraft Cable Hanging Kit
Specifications
Specifications
| Part Number# | HB-150-18Y-PAD-L&P |
|---|---|
| Type of Area: | Gym & Sports, Hangers & Storage |
| Ballast Start Type: | Instant Start |
| Dimensions: | 15 ft hanging kit | 180" |
| Dimmable: | No |
| Weight Each: | 1.0 lb |
| Manufacturer: | Pendant Systems |
| Technology: | Fixture Hanging Kits |
Details
Details
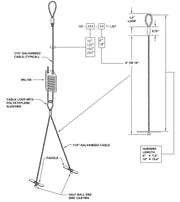
12.5 ft 150" High Bay Lighting Fixture Loop & Paddle Aircraft Cable Hanging Kit. Easily hang your light fixtures with this adjustable 1/16 galvanized aircraft cable. Includes Y-Paddle assembly and a quick locking device to change the height of the cable with no pins or tools. Package contains 2 cable sets, one for each end of the fixture.
ShineRetrofits Input:
These kits are the most well constructed and fastest way to hang lighting fixtures in our experience. Many of us have used the standard cable in the past and it can be tough to try and adjust the fixture height using their pin. Not only can it be slow, but you risk losing it or dropping it from up on the lift, further slowing down the installation of lighting fixtures. This kit solves that problem with a quick release adjustable Kwik Lock device that requires no pin, and allows you to easily slide the cable up and down just by pressing a button with your thumb already on the locking device. The paddles at the end of the Y assembly fit into each hole at the corner of your high or low bay lighting fixture. With this loop kit you can attach the loop at the top of the ceiling or mounting location.
- High Bay Suspension Kit with 1/16 in. galvanized cables with #1 stop to loop over structure using the #112 loop adapter or insert through 1/4 in. hole in metal decking using PD-1/16 paddle end with cable stop
- The cut end of cable captures the loop in the Y paddle assembly using the KL-100 Kwik Lock Device. The adjustablility would be directly overtop the fixture end.
- Kit contains 2 parts of each item for total fixture mounting
If you need a custom cable length please give us a call or contact us here!
Shipping and Returns
Shipping and Returns
Shipping
We are pleased to currently offer free ground or freight shipping on orders over $500 shipped to the contiguous 48 states. Items over 48 inches may be subject to additional charges. Most orders are processed and shipped out within 1-3 business days. A tracking number will be emailed to you as soon as the shipping department provides it.
Returns
Returns are accepted up to 30 days after order delivery. For all returns, you must contact us in advance to obtain a Return Material Authorization (RMA) form. You are responsible for all return shipping cost, and all shipping charges are non-refundable. All parts that have been authorized for return must be received within 14 days after RMA was issued. A 35% restocking fee applies to ALL parts returned unless you order a direct replacement. Refunds for all returned items may take up to 60 days to process after the returned item is received. All returns must be in original packaging, unused, in resellable condition.
Trusted by 40,000+ Happy Customers
Rated 4.7/5 for Service and Reliability

